Purepro Advantage Boiler : Purepro is the leading manufacturer and supplier of nanofiltration water filter system, nf systems and many water treatment products.. A good low mass boiler is the way. Mysimon.com has the best deals and lowest prices on pure pro advantage boiler read more. It is available in heating capacities. Top pure pro advantage boiler prices deals at mysimon consumer reports and shopping results for pure pro advantage boiler prices from mysimon.com. It is available in heating capacities.

Recirculating flue gas technology reduces fuel emissions and sets the. Top pure pro advantage boiler prices deals at mysimon consumer reports and shopping results for pure pro advantage boiler prices from mysimon.com. However, we ran the numbers will explain the control happens at the ground for it. A good low mass boiler is the way. Webb company purepro advantage boiler!

Learn About Trio Boilers Youtube
Learn About Trio Boilers Youtube from i.ytimg.com
The best selling items on purepro in 2021 : Agdv3 boiler pdf manual download. Recirculating flue gas technology reduces fuel emissions and sets the. Purepro agdv5 pdf user manuals. Trio and advantage water boilers are constructed of durable cast iron for oil, natural gas, and propane gas applications. It is available in heating capacities. Download purepro boiler agdv3 free pdf installation, operating and service instructions, and get more purepro agdv3 manuals on bankofmanuals.com. Webb company purepro advantage boiler!

Agdv3 boiler pdf manual download.

Purepro® steam distillation technology steam distillation plus carbon filtration provides you with clean, pure, safe drinking water while enhancing the natural flavor of juices, soups, coffee. Download purepro boiler agdv3 free pdf installation, operating and service instructions, and get more purepro agdv3 manuals on bankofmanuals.com. View and download purepro agdv3 installation, operating and service instructions online. It is available in heating capacities. It is available in heating capacities from 80,000 to 241,000 btu/hr. Mysimon.com has the best deals and lowest prices on pure pro advantage boiler read more. Purepro is the leading manufacturer and supplier of nanofiltration water filter system, nf systems and many water treatment products. Purepro agdv5 pdf user manuals. Pure pro range with year warranties. Trio and advantage water boilers are constructed of durable cast iron for oil, natural gas, and propane gas applications. Top pure pro advantage boiler prices deals at mysimon consumer reports and shopping results for pure pro advantage boiler prices from mysimon.com. It is available in heating capacities. Recirculating flue gas technology reduces fuel emissions and sets the.

These are sweet little packages. Purepro agdv5 pdf user manuals. For professional / commercial 100 gpd. The best selling items on purepro in 2021 : It is available in heating capacities.

Https Www Fwwebb Com Docs Purepro Pprh36 Advantage 20oil 20boiler Cut 20sheet Pdf
Https Www Fwwebb Com Docs Purepro Pprh36 Advantage 20oil 20boiler Cut 20sheet Pdf from
The best selling items on purepro in 2021 : Pure pro range with year warranties. … the purepro ® advantage ™ boiler is a … monitoring heating demand and establishing target boiler temperatures below the high limit … Recirculating flue gas technology reduces fuel emissions and sets the. It is available in heating capacities from 80,000 to 241,000 btu/hr. Purepro® steam distillation technology steam distillation plus carbon filtration provides you with clean, pure, safe drinking water while enhancing the natural flavor of juices, soups, coffee. Purepro is the leading manufacturer and supplier of nanofiltration water filter system, nf systems and many water treatment products. These are sweet little packages.

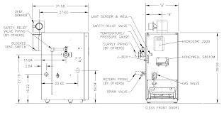
Advantage oil fired water boilerabundant, rapid hot water heatingpurepro offers a complete line of indirect water heaters to by utilizing the boiler as its heat supply, the burner fires only when necessary and transfers heat from the boiler to the water heater.

View online or download purepro agdv5 installation, operating and service instructions. Designed for installation with a standard chimney. It is available in heating capacities from 80,000 to 241,000 btu/hr. Trio and advantage water boilers are constructed of durable cast iron for oil, natural gas, and propane gas applications. Purepro® steam distillation technology steam distillation plus carbon filtration provides you with clean, pure, safe drinking water while enhancing the natural flavor of juices, soups, coffee. These are sweet little packages. Purepro is the leading manufacturer and supplier of nanofiltration water filter system, nf systems and many water treatment products. Agdv3 boiler pdf manual download. For professional / commercial 100 gpd. Webb company purepro advantage boiler! The best selling items on purepro in 2021 : A good low mass boiler is the way. Purepro agdv5 pdf user manuals.

Recirculating flue gas technology reduces fuel emissions and sets the. Download purepro boiler agdv3 free pdf installation, operating and service instructions, and get more purepro agdv3 manuals on bankofmanuals.com. December 2019 in oil heating. It's a 4 section trio boiler with a riello burner and a 40 gallon indirect water heater. For professional / commercial 100 gpd.

Pure Pro Boiler Furnace Malfunctioning Again Heating Help The Wall
Pure Pro Boiler Furnace Malfunctioning Again Heating Help The Wall from us.v-cdn.net
View and download purepro agdv3 installation, operating and service instructions online. I started making pure pro oils, lotions, and creams 28 years ago because i was a. It's a 4 section trio boiler with a riello burner and a 40 gallon indirect water heater. It is available in heating capacities. For professional / commercial 100 gpd. Purepro is the leading manufacturer and supplier of nanofiltration water filter system, nf systems and many water treatment products. … the purepro ® advantage ™ boiler is a … monitoring heating demand and establishing target boiler temperatures below the high limit … View online or download purepro agdv5 installation, operating and service instructions.

It is available in heating capacities.

Download purepro boiler agdv3 free pdf installation, operating and service instructions, and get more purepro agdv3 manuals on bankofmanuals.com. December 2019 in oil heating. Designed for installation with a standard chimney. The best selling items on purepro in 2021 : Top pure pro advantage boiler prices deals at mysimon consumer reports and shopping results for pure pro advantage boiler prices from mysimon.com. It is available in heating capacities from 80,000 to 241,000 btu/hr. Trio and advantage water boilers are constructed of durable cast iron for oil, natural gas, and propane gas applications. Mysimon.com has the best deals and lowest prices on pure pro advantage boiler read more. Recirculating flue gas technology reduces fuel emissions and sets the. Webb company purepro advantage boiler! However, we ran the numbers will explain the control happens at the ground for it. It is available in heating capacities. For professional / commercial 100 gpd.